UL 50E adalah standar sertifikasi UL untuk pertimbangan lingkungan perlengkapan listrik. Standar ini mencakup persyaratan struktural lingkungan tambahan dan kinerja perlengkapan listrik dengan pertimbangan lingkungan. Standar ini berlaku untuk pasar Amerika Serikat, Meksiko dan Kanada.
Standar UL 50E berlaku untuk penutup peralatan listrik yang dipasang dan digunakan di lokasi tidak berbahaya sesuai dengan bagian kode listrik Kanada I CSA C22.1 dan kode listrik nasional NFPA 70. Peraturan dari NOM-001-SEDE shower UL 50E elektrikal Meksiko adalah sebagai berikut:
1) PENUTUP UNTUK tempat dalam ruangan, jenis 1, 2, 5, 12, 12K dan 13;
2) PENUTUP UNTUK lokasi dalam dan luar ruangan, jenis 3, 3R, 3S, 4, 4X, 6 dan 6P.
UL 50E mencakup struktur lingkungan tambahan dan persyaratan kinerja dari kandang. Persyaratan umum untuk kandang terkandung dalam standar CSA C22.2 No. 94.1, UL 50 dan NMX-J-235/1-ANCE atau bersamaan dengan standar ini untuk produk akhir digunakan.

Uji UL 50E mencakup tes berikut: Uji tetes, uji hujan, uji debu, uji icing eksternal, uji selang, perlindungan korosi dalam ruangan, perlindungan korosi luar ruangan, uji pencelupan, uji tekanan, uji pengecualian minyak, uji pencuci, uji batang masuk, uji kesalahan uji, paparan air dan tes perendaman. Artikel ini hanya membahas paparan air dan tes pencelupan di standar UL 50E, memperkenalkan UL 50E shower.
Fungsi utama dariUL 50E showerAdalah untuk menguji sifat terkait fisik dan lainnya dari elektronik, produk listrik, lampu, lemari listrik, komponen listrik dan produk lainnya di bawah kondisi cuaca hujan yang disimulasikan. Setelah uji, melalui verifikasi untuk menentukan apakah kinerja produk memenuhi persyaratan, untuk memfasilitasi desain, peningkatan, verifikasi, dan inspeksi pabrik produk.

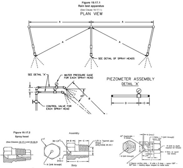
UL 50E shower umumnya simulasi berbagai kondisi curah hujan alami, termasuk ukuran, kecepatan, curah hujan, sudut curah hujan, dll., Untuk menyiram produk yang telah diuji.
Shower UL 50E biasanya terdiri dari:
1. Sistem suplai air: bertanggung jawab untuk menyediakan sumber air yang bersih dan stabil, dan mengendalikan tekanan air dan kecepatan aliran air melalui Pancuran UL 50E pengatur tekanan.
2. Sistem semprotan air: terdiri dari sejumlah kepala sprinkler yang dirancang dengan hati-hati untuk memastikan bahwa distribusi dan karakteristik tetesan air memenuhi persyaratan standar.
3. Sistem Kontrol: digunakan untuk mengatur dan mengontrol parameter uji hujan, seperti waktu hujan, curah hujan, dll., Dan pemantauan dan perekaman data uji waktu nyata.

Saat bekerja, air terkirim melalui sistem suplai air ke nozzle, dan kemudian disemprotkan ke cara tertentu untuk membentuk curah hujan simulasi. Produk yang telah diuji diletakkan pada pancuran air tetap UL 50E di ruang hujan dan disemprotkan dengan air hujan. Dengan mengendalikan parameter yang berbeda, intensitas dan jenis curah hujan yang berbeda dapat disimulasikan.
1. Jumlah nozel dan sudut injeksi, sudut injeksi adalah 45 °.
2. Tekanan semprotan air, umumnya 34,5kpa atau dapat disesuaikan untuk memenuhi persyaratan uji yang berbeda.
3. Tinggi persimpangan kolom air nozel dapat disesuaikan, rentangnya mungkin dari 300mm hingga 1200mm atau 1000mm hingga 2000mm.
4. Waktu uji dapat disesuaikan dan dapat diatur dari 0 hingga 99999.9 menit.
5. Bahan pendukung dapat terbentuk bahan aluminium atau profil aluminium industri, dan dasarnya dilengkapi dengan roda rem universal.
6. Struktur dan fungsi: shower UL 50E dapat mencakup komponen seperti kepala sprinkler, mendukung, pengukur tekanan, dll. Desain jarak dan struktur kepala sprinkler harus memenuhi persyaratan grafis standar UL tertentu.
| Model | R-UL020 | |
Dimensi keseluruhan (mm) | 800*1500*3800mm | |
Jangkauan penyesuaian tinggi perangkat semprot | 1000-3600mm (dapat disesuaikan) | |
Parameter | Jumlah kepala semprot | 3 kepala spray |
Pemberi jarak nosel | 710mm | |
Diameter lubang penyemprot | Intrav5mm | |
Tekanan air | 34,5kpa | |
Contoh ukuran platform | ||
Muatan sampel beban platform | 100 kg | |
| ||
| ||
LIBUL 50E showerSangat baik dalam parameter teknis di atas:
A. Menggunakan proses manufaktur nosel canggih untuk memastikan bahwa pengecualian distribusi raindrop lebih tinggi dari standar industri;
B. Sistem pengaturan tekanan yang unik tidak hanya dapat mempertahankan tekanan set secara akurat, tetapi juga memiliki fungsi kompensasi otomatis fluktuasi tekanan untuk memastikan stabilitas uji;
C. Penyesuaian tinggi nosel mengadopsi kontrol listrik, operasi nyaman, dan presisi tinggi;
D. Kontrol waktu uji akurat hingga 0.1 menit, yang menyediakan jaminan kuat untuk pengujian tingkat penelitian ilmiah;
E. Struktur dukungan telah diperkuat untuk memastikan stabilitas dan mengurangi berat keseluruhan peralatan, yang nyaman untuk transportasi dan pemasangan.
F. Sistem kontrol cerdas yang unik dapat mewujudkan pemantauan jarak jauh dan perekaman data, yang sangat meningkatkan efisiensi uji dan kenyamanan manajemen.
1. Produk elektronik dan listrik
Termasuk ponsel, komputer, tablet, pengisi daya, kerangka listrik, dll., untuk memastikan bahwa produk ini masih dapat bekerja secara normal di lingkungan yang lembab, untuk mencegah hubungan pendek, kegagalan dan masalah lain yang disebabkan oleh air.
2. Suku cadang otomotif
Lampu depan mobil, lampu belakang, dasbor, sensor, unit kontrol elektronik, dan komponen lainnya perlu memiliki kinerja tahan air yang baik untuk disesuaikan dengan berbagai kondisi cuaca.
3. Peralatan luar ruangan
Lampu jalan, kamera pengawas, peralatan komunikasi, panel surya, dan peralatan luar ruangan lainnya sering terkena lingkungan hujan, melalui tes hujan dapat memverifikasi kemampuan perlindungannya.
4. Aerospace
Bagian pesawat, rumah pesawat ruang angkasa, dll., membutuhkan ketahanan air yang sangat tinggi, dan pancuran UL 50E membantu memastikan bahwa mereka menjaga operasi normal dalam kondisi cuaca yang sangat redup.
Lihat di sini, saya yakin Anda memiliki pemahaman tertentu tentang UL 50E shower, jika Anda khawatir tentang uji kinerja tahan air produk, LIB UL 50E shower akan menjadi pilihan ideal anda. Parameter teknisnya tepat, kinerja andal, dan reputasi merek yang sangat baik dapat memberikan jaminan solid untuk kualitas produk Anda. Hubungi kami hari iniInquiry@libtestchamber.comUntuk detail produk lainnya dan penawaran spesial!
English
русский
français
العربية
Deutsch
Español
한국어
italiano
tiếng việt
ไทย
Indonesia
